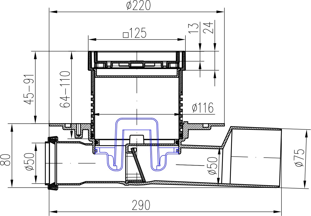
Podlahová vpusť průběžná D50/75, nerez příruba, rámeček, mřížka STEEL 125
Vpusť je určena pro vnitřní a venkovní použití. Obsahuje suchou klapku a vodní hladinu. Vyrobeno z PP, PS a nerezové oceli DIN 1.4301. Zatížení K3-300 kg, odolnost do 90°C, zkoušeno dle normy EN 1253.
2 136.86 Kč
vč. DPH
(1 766 Kč bez DPH)
~88,1543 € vč. DPH
Obj. číslo: S 427 B
EAN: 8595587432389
Skladem
Parametry
- Délka
- 125 mm
- Šířka
- 125 mm
- Výška
- 171 mm
- Barva
- Šedá
- Typ mřížky
- STEEL
- Materiál
- nerez, polypropylen, polystyren
- Nerezový rámeček
- Ano
- Typ připojení odpadu
- horizontální průběžný, horizontální s adaptérem
- Průměr připojení odpadu
- 50, 75
- Průtok (l/min)
- 29-80
- Průměr odpadní přípojky
- 75 mm
- Otočná přípojka odpadu
- Ano
- S nastavitelnou výškou
- Ano
- Použití v exteriéru
- Ano
- Třída zatížení
- K3
Ke stažení
Balení produktu
Využijte naše zvýhodněné nabídky.
